一、項目背景
在國土空間規劃體系改革背景下,積極推進“多規合一”的實用性村莊規劃編制工作,推動農業生產集約增效、鄉村產業多元發展,系統構建具有江南水鄉特色的現代化鄉村空間格局。目前,《昆山市巴城鎮龍潭湖村村莊規劃(2021-2035年)》已獲批并完成省級備案。
二、規劃思路

圖1 規劃編制技術路線
三、村莊概況
(1) 現狀分析
龍潭湖村位于巴城鎮南部,北側靠近巴城鎮鎮區,常嘉高速南北向穿過村域。龍潭湖村緊鄰傀儡湖,河網交織,生態條件優越。村內以葡萄種植和螃蟹養殖為支柱產業,同時充分發揮農業特色,開發鄉村旅游產品,目前已經初具規模。

圖2 區位圖
(2)規劃傳導
根據《昆山市鎮村布局規劃(2019版)》,規劃范圍內共8個自然村,其中集聚提升類村莊3個(北家厙、龍潭頭、黃泥涇/角里),搬遷撤并類村莊5個(張家浜、新風6組、陸巷浜、沈巷、香爐角)。
四、總體布局規劃
(1)規劃定位
發展目標:以保護田園資源和生態環境、提高農業綜合生產能力與品質、促進農民創富增收為使命,打造集農業生態、生產、觀光、休閑和農事活動體驗等多功能于一體的融合示范鄉村。
總體定位:傀儡湖東岸生態魅力鄉村,城鎮近郊農業休閑公園。
(2)用地布局規劃

圖3 土地利用規劃圖
(3)特色產業引導
推進三產聯動和景農文旅協同融合發展,發展集生態農業、自然教育、休閑旅游等為一體的復合產業鏈,形成雙帶六片多點的布局結構。

圖4 特色產業引導圖
五、居民點規劃設計
(1)村莊平面布局
為規范農村住宅建設和管理,提高農村住房建設質量,優化空間布局,切實改善農村人居環境,在符合村域用地布局規劃和用途管控要求的基礎上,編制農村居民點規劃設計方案,指導農村居民點農房建設。

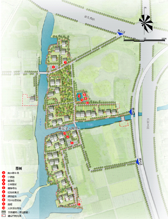
圖5 黃泥涇(角里)居民點規劃平面圖

圖6 北家厙居民點規劃平面圖

圖7 龍潭頭居民點規劃平面圖
(2) 建筑風貌引導
規劃農房戶型以兩層獨立式住宅為主,總建筑面積不超過280平方米。采用兩坡頂的形式,適當錯落。建筑主色調為黑白灰,門窗主色調為棕色木紋。村民在宅基地上自建房的,應依法辦理宅基地審批和建房規劃許可手續,應符合《巴城鎮農村房屋規劃建設管理實施細則(試行)》要求。

圖8 農房戶型效果圖
(3)景觀風貌引導
結合巴城鎮的氣候特點及土壤環境,對村莊主要入口及主次道路兩側、公共活動空間、公共視覺界面的宅前屋后等區域因地制宜地開展補綠增綠工作,引導農民進行庭院綠化種植,營造綠色生態的農家小院。同時,加強對村口、濱河等重要節點景觀的改造提升,形成特色鮮明、空間宜人、層次豐富的鄉土景觀效果。

圖9 景觀空間效果圖

