一項目背景
為貫徹落實國家和省市對于全面推進鄉村振興、實施鄉村建設行動的決策部署,昆山市有序開展“多規合一”的村莊規劃編制工作,加強全域全要素規劃管控,高質量推進宜居宜業和美鄉村和新時代魚米之鄉建設。目前《昆山市周市鎮小涇村村莊規劃(2021-2035年)》已獲批并完成省級備案。
二規劃思路
基于現狀基礎研究,以促進鄉村全面振興為目標,梳理現狀村莊問題及發展訴求,落實上位及相關規劃要求,統籌協調各類空間矛盾,堅持問題導向與目標導向相結合,開展“多規合一”的實用性村莊規劃編制工作,形成可實施的一張藍圖。
圖1規劃編制技術路線
三村莊概況
1.現狀分析
小涇村位于昆山市東北部、周市鎮北部區域,與常熟、太倉交界。蘇昆太高速公路東西向穿越村域,對外交通便捷,往西可至蘇州,往東可至太倉,向北可至常熟,向南可至嘉興,與上海、蘇州相距約30-40分鐘車程。村域總面積為6.69平方公里。
圖2區位圖
村域內地勢平坦,坑、塘、河道眾多,具有典型的江南水鄉河網脈絡,生態環境本底較為優良。現狀各類產業發展初具規模,擁有周市鎮目前最大的現代漁業產業園;村企聯建,打造“美麗菜園”,擁有自有品牌“小涇蔬菜”。同時也存在產業發展與周邊區域缺乏聯動、一二三產融合深度不足等問題。


圖3現狀航拍圖
2.規劃傳導
根據《昆山市鎮村布局規劃(2019版)》,小涇村共有5個自然村,其中集聚提升類村莊2個(小涇、北潘涇),其他一般村莊3個(丁家角、嚴家灣、羅家稍)。
四總體布局規劃
1.規劃定位
發展目標:產業多元興旺、環境秀美宜居的現代生態田園鄉村示范區。
規劃愿景:秀美小涇·生態新村。
圖4規劃總平面圖
2.空間結構
規劃形成“一心、一軸、四片區”的空間結構。
一心:綜合服務中心;
一軸:產業風貌展示軸;
四片區:高效農業示范區、現代漁業產業區,新型農業示范區和高端裝備制造產業集聚區。
圖5空間結構規劃圖
3.用地布局規劃
規劃新增建設用地主要用于村莊內農房翻建、公共服務和基礎設施完善等項目。
圖6土地利用規劃圖
五村莊設計
為規范農村住宅建設和管理,提高農村住房建設質量,優化空間布局,切實改善農村人居環境,在符合村域用地布局規劃和用途管控要求的基礎上,編制村莊設計方案,指導農村居民點建設。
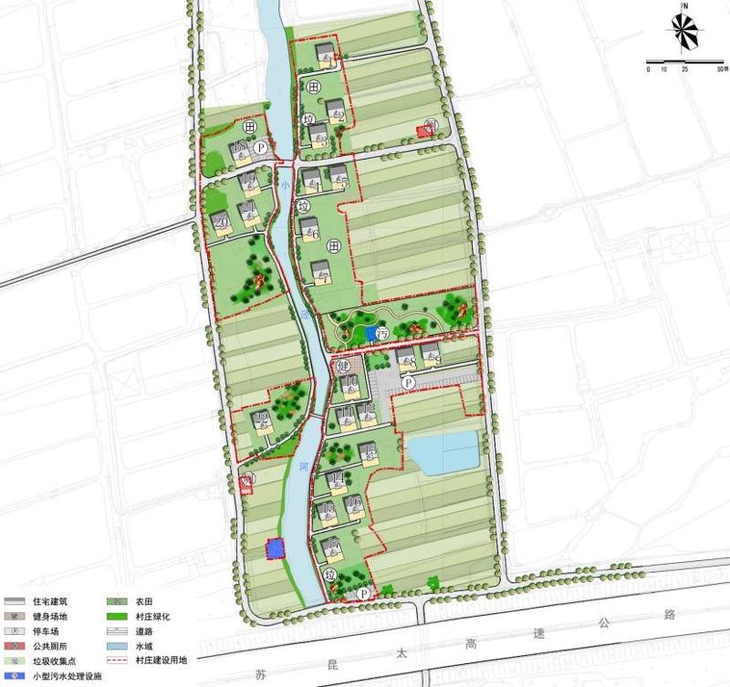
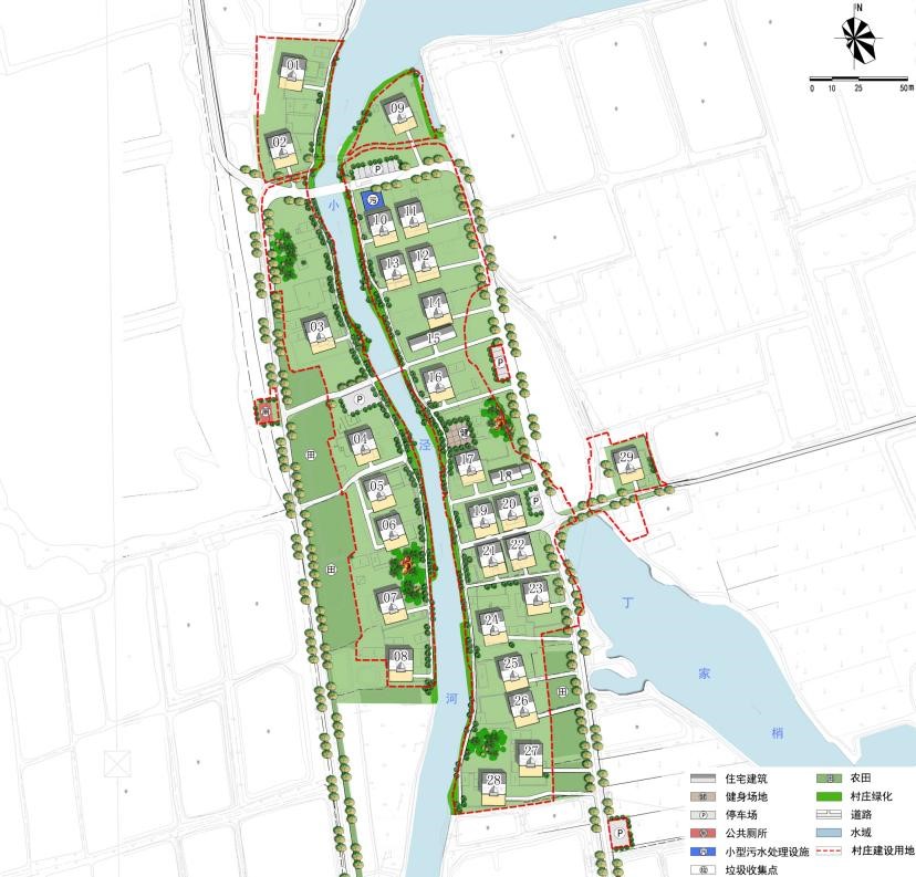
1.村莊平面布局
規劃共涉及丁家角、嚴家灣、北潘涇和小涇4個居民點,重點滿足村民農房翻建與公共服務設施配套的建設需求。
圖7丁家角居民點規劃平面圖
圖8嚴家灣居民點規劃平面圖
圖9北潘涇居民點規劃平面圖
圖10小涇居民點規劃平面圖
2.建筑設計引導
規劃農房戶型以兩層獨立式住宅為主,總建筑面積不超過280平方米。遵循“綠色、經濟、適用、美觀”的原則,建筑風貌與建筑風格以新蘇式為主,主色調為黑白灰,構建“粉墻黛瓦”風格,體現江南水鄉特色。

圖11農房戶型效果圖
3.景觀風貌引導
村莊公共空間以小游園、集中綠地及健身場地為主,加強對村口、濱河等重要節點景觀的改造提升,形成特色鮮明、空間宜人、層次豐富的鄉土景觀效果。
圖12濱水空間示意圖











